Assistant Ingenieur — Genie Civil

Mouhamadou
Mansour
Mbengue

Conception, structure, terrain. Entre fonctionnalite et modernite, chaque projet est une opportunite de creer des espaces qui durent.

Projet Keur Massar
Duplex R+1 — Keur Massar
5
Projets concus

Un ingenieur
de terrain

Passionne par la conception et la realisation d'infrastructures, je combine un solide sens du terrain avec une maitrise des outils de conception modernes. Chaque projet est une occasion de traduire des plans en realites concretes et durables.

Forme en Genie Civil a Batisup, j'ai acquis une experience pratique a travers plusieurs stages en chantier, bureau d'etudes et laboratoire — couvrant l'integralite du cycle de vie d'un projet de construction.

Mon approche est fondee sur la rigueur technique, l'esprit entrepreneurial et un engagement sans faille envers la qualite des ouvrages realises.

5+
Stages realises
5
Projets concus
2D
& 3D maitrise
R+2
Niveau max concu

Outils &
Expertises

Logiciels de conception
AutoCAD
Archicad
Robot DDC
Graitec
Competences techniques
Conception plans 2D/3D
Dimensionnement ouvrages
Suivi & gestion chantier
Essais laboratoire

Projets de
conception

Maison R+1 Keur Massar vue 3D
Plan RDC Keur Massar
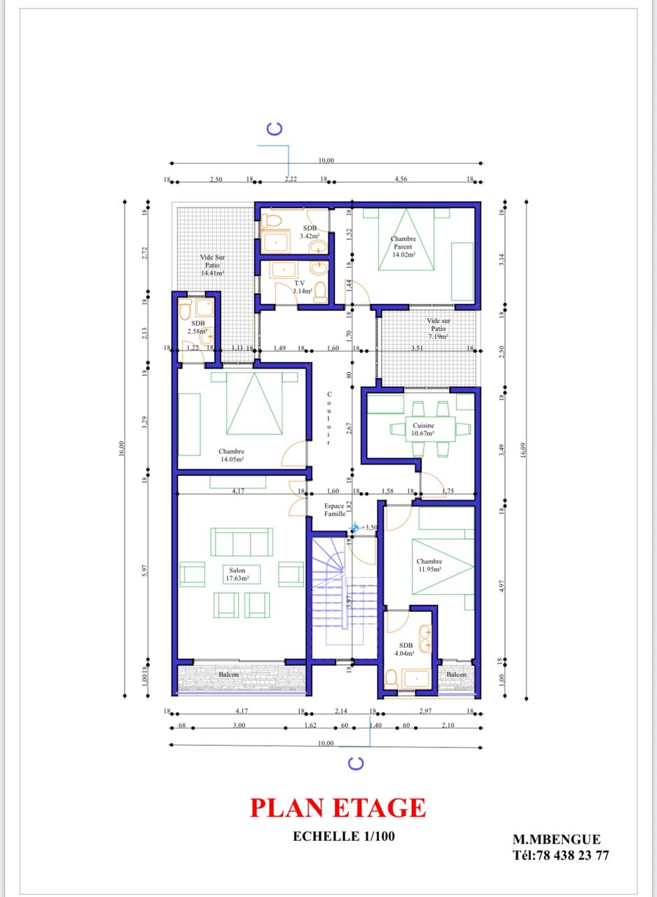
Plan étage Keur Massar
Projet 01

Maison R+1
Keur Massar

Keur Massar, Dakar — 150 m²

Un espace pensé pour vivre.

Entre fonctionnalité et modernité, chaque mètre carré est optimisé pour le confort. Une architecture qui conjugue esthétique terracotta, balcons ouverts et volumes maîtrisés pour une vie de famille épanouie.

Conception 2D/3D — Structure maîtrisée.

R+1 150 m² 2D / 3D Résidentiel AutoCAD
Projet 02

Immeuble R+2
Dakar

Dakar — Usage d'habitation

Un plan coup de cœur réalisé dans le cadre d'un projet de construction d'un immeuble R+2 à usage d'habitation à Dakar.

Une architecture contemporaine aux lignes épurées et aux balcons plantés, qui s'inscrit avec élégance dans le tissu urbain dakarois.

R+2 Collectif 2D / 3D Dakar Archicad
Immeuble R+2 Dakar vue façade
Vue intérieure Immeuble R+2
Vue perspective Immeuble R+2
Villa 150m² Mbour vue façade
Villa 150m²
Vue intérieure Villa 150m²
Projet 03

Villa Mbour
150 m²

Mbour — 150 m²

Une villa à voir au moins une fois dans sa vie.

Cette maison de 150 m² située à Mbour est pensée pour vous donner le plaisir de posséder une belle maison. Des volumes généreux, une palette de couleurs vive et moderne, des espaces de vie tournés vers l'extérieur.

150 m² Mbour Résidentiel 2D / 3D
Projet 04

Villa Spacieuse
Mbour

Mbour — 339 m²

Une villa de 339 m² à Mbour, complètement pensée pour vous mettre à l'aise dans un cadre spacieux et élégant.

Patios intérieurs, salon ouvert, suites parentales généreuses et balcons : chaque espace a été conçu pour que le confort soit une évidence.

R+1 339 m² Mbour Villa AutoCAD
Villa 339m² Mbour vue principale
Vue villa 339m² angle 1
Vue villa 339m² angle 2
Maison basse Dakar vue 3D
Vue de face maison basse
Plan masse maison basse
Projet 05

Maison Basse
Dakar

Dakar — Plain-pied

Une maison basse au cœur de Dakar pour vous surprendre de la beauté des choses simples et belles.

Un design épuré, une façade blanche minérale, une toiture-terrasse végétalisée. La preuve qu'on peut créer un cadre de vie exceptionnel avec le moins.

Plain-pied Dakar Minimaliste 2D / 3D Archicad

Experiences
professionnelles

Juin 2025
– Juil. 2026
Licorne Group
Stage Bureau d'Etudes

Conception et verification de plans architecturaux et structuraux. Participation a la production de documents techniques, metres et notes de calcul. Collaboration avec les equipes d'ingenierie sur des projets residentiels.

Dec. 2025
– Mar. 2026
Truelle d'Or Senegalaise
Stage Bureau d'Etudes

Elaboration de plans de construction, coordination avec les architectes et les ingenieurs structures. Participation au suivi technique de projets residentiels et commerciaux en cours de realisation.

Sept.
– Nov. 2025
Laboratoire BTP
Stage Laboratoire

Tests et analyses de materiaux de construction. Controle qualite des betons, essais de resistance et caracterisation des sols. Redaction de rapports d'essais conformes aux normes en vigueur.

Aout
– Oct. 2023
CAFEG
Stage Chantier

Suivi de chantier sur des ouvrages de genie civil. Controle de l'execution des travaux, coordination avec les equipes terrain et respect des delais et des normes de securite.

Mai
– Juin 2023
EBX BTP
Stage Chantier

Assistance a la maitrise d'oeuvre. Lecture et interpretation de plans, suivi des travaux de gros oeuvre et participation aux reunions de chantier hebdomadaires.

Formation
Batisup — Dakar
Licence en Genie Civil

Formation complete en genie civil couvrant la mecanique des structures, le beton arme, la topographie, la geotechnique et la gestion de projet. Acquisition des bases theoriques et pratiques pour la conception et la realisation d'ouvrages.

Travaillons
ensemble

Disponible pour des collaborations sur des projets de conception architecturale, suivi de chantier ou etudes techniques en genie civil.

Localisation
Dakar, Senegal
Specialites
Conception 2D/3D · Suivi chantier · Structure
Disponibilite
Ouvert aux opportunites